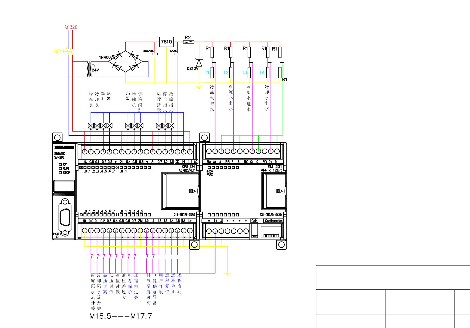
资料名称:单头水冷螺杆空调机组PLC程序(含CAD接线图)
硬件要求:CPU224+EM231+TD400文本屏(西门子S7-200CN)
编程软件:s7-200 microwin v4.0 sp6/sp7/sp8/sp9
程序说明:1) 程序包括:启动程序、模拟量转换程序、卸载/加载程序、保护程序及报警程序。
2)文本屏显示蒸发器实时进/出水温度、实时能量百分比、温度设定值及故障报警等;
3) 通过文本屏可实现开机/停机;参数设置(温度设置及报警值设置);查看历史故障及故障复位等。
螺杆机组控制比较复杂,能量控制是通过螺杆机头上的三只电磁阀的开断来移动压缩机内部的滑阀,达到调节压缩机吸气口冷媒的流量;流量的大小可调节冷水机组的温度;由于是三只电磁阀调节流量,所以能量调节的级数是:0%、33%、70%、100%(0%是断开螺杆机头的电源)。温度控制方面一般是根据蒸发器的回水温度来调控,对应螺杆机头的能量调节分级进行温度控制;本程序都有详细说明,包括接线图。是研究或维修螺杆冷水空调机组的重要资料,希望对大家有帮助哦!
技术支持: 13925047020(微信同号),可协助上门调试!









粤公网安备 44010602011516号